Skip to Content
Sonoma Public Infrastructure

Petaluma

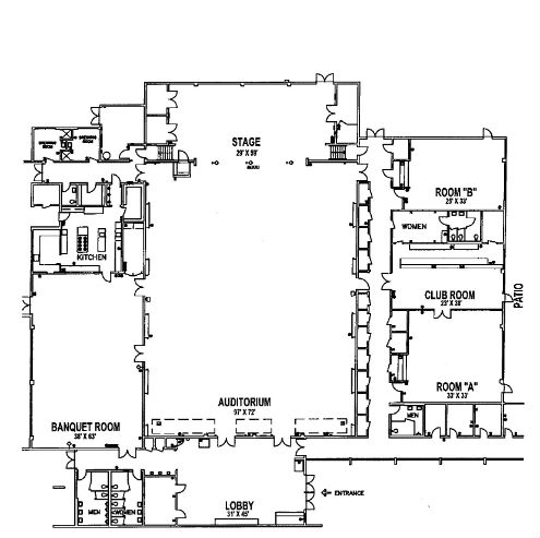
The Petaluma Veterans Memorial Building has easy access to Highway 101 and has a square footage of 23,600 feet.

For reservations: Submit a booking request using the online calendar, call (707) 565-2550 or email spi-halls@sonomacounty.gov

Rental Rates and Capacity (Effective July 1, 2025)

ROOM

CAPACITY

HOURLY RATE

Assembly

Seated

Dining

Dine & Dance

Auditorium

900

800

450

375

$105.00

Banquet Room

358

250

167

120

$61.00

Conference Room A

158

110

74

n/a

$55.00

Conference Room B

121

80

57

n/a

$50.00

Kitchen

$35.00

Auditorium after 1:00 AM

$165.00

Parking Lot 25% (partial lot)

$100.00

Parking Lot 50% (partial lot)

$150.00

Parking Lot 100% (partial lot)

$200.00

Use Minimum: For non-peak days (Monday-Thursday) the minimum requirement for room rentals will be 1 hour.
Note: Petaluma Veterans Building does not have air conditioning.

Discounts Available (Effective July 1, 2025)

Discount Reason

Discount

 

Non-Peak Days

Monday - Thursday

20% Discount

Rental of the Facility during non-peak days will be at a 20% discount of the normal rate.

Peak Days
Friday - Sunday

No change

Rental of the Facility during peak days will remain at the current rate.

Multi-day Rentals

50% discount for set-up or breakdown days

For multi-day rentals, a discount of 50% will be applied to the first and last day of the rental, if those days will be used to either set up the event or break down the event.

Minimum Hours
Monday - Thursday

Reduce minimum reservation requirement from 4 hours to 1 hour

For non-peak days, the minimum hour requirement for room rentals would be reduced to 1 hour.

Non-Profits
501(c)(x) and Government Agencies

10% discount

Non-profit organizations (upon proof) will receive a 10% discount in addition to other discounts if available.

Floorplan