Skip to Content
Sonoma Public Infrastructure

Santa Rosa

Image of the exterior of a government building.

The Santa Rosa Veterans Memorial Building is the largest public assembly facility of its type in Sonoma County.

For reservations: call (707) 565-3350 or toll free (844) 301-8227 or email stephanie.goodwin@sonomacounty.gov.

View the video on an upgrade to the building: YouTube Santa Rosa Veterans Memorial Building Floor Refinishing

Rental Rates and Capacity (Effective July 1, 2025)

ROOM

CAPACITY

HOURLY RATE

 

Assembly

Seated

Dining

Dine & Dance

Auditorium

1200

1000

653

500

$105.00

Lodge Room

440

275

205

150

$61.00

Dining Room

408

250

200

150

$61.00

North Room

139

80

65

n/a

$44.00

Judges Chambers

55

35

26

n/a

$44.00

Kitchen

$35.00

Concession (Small Kitchen)

$30.00

Auditorium after 1:00 AM

$165.00

All Other Rooms after 1:00 AM (Fee on top of room rate)

$50.00

Parking Lot 25% (partial lot)

$100.00

Parking Lot 50% (partial lot)

$150.00

Parking Lot 100% (partial lot)

$200.00

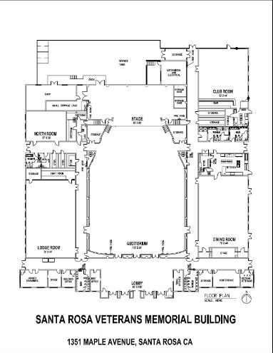
Floorplan

Santa Rosa Veterans Building Floorplan (small)