Skip to Content
Sonoma Public Infrastructure

Sonoma

Image of the exterior of a government building.

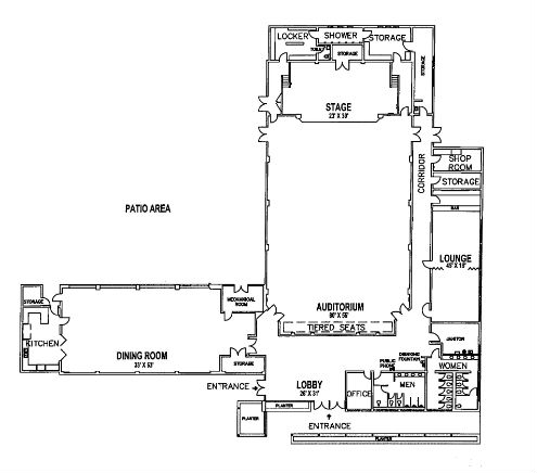
Located in Sonoma Valley, the Sonoma Veterans Memorial Building was remodeled in 1992, adding a retractable theater seating system in the auditorium and renovating the lobby, hallways, restrooms, and meeting rooms. Just a few blocks from downtown Sonoma, the facility offers a large, enclosed patio area that is accessible from the auditorium.

For reservations: submit a booking request through the online calendar, call (707) 565-2550 or email spi-halls@sonomacounty.gov. Closed Fridays.

Rental Rates and Capacity (Effective July 1, 2025)

ROOM

CAPACITY

HOURLY RATE

Assembly

Seated

Dining

Dine & Dance

Auditorium

(4hr. min.)

700

500

300

250

$82.50

Dining Room

(2 hr. min.)

309

240

150

90

$60.50

Kitchen (4 hr. min.)

$33.00

Auditorium after 1:00 AM

$165.00

Parking Lot 25% (partial lot)

$100.00

Parking Lot 50% (partial lot)

$150.00

Parking Lot 100% (partial lot)

$200.00

Discounts Available (Effective July 1, 2025)

Discount Reason

Discount

 

Non-Peak Days

Monday - Thursday

20% Discount

Rental of the Facility during non-peak days will be at a 20% discount of the normal rate.

Peak Days
Friday - Sunday

No change

Rental of the Facility during peak days will remain at the current rate.

Multi-day Rentals

50% discount for set-up or breakdown days

For multi-day rentals, a discount of 50% will be applied to the first and last day of the rental, if those days will be used to either set up the event or break down the event.

Minimum Hours
Monday - Thursday

Reduce minimum reservation requirement from 4 hours to 1 hour

For non-peak days, the minimum hour requirement for room rentals would be reduced to 1 hour.

Non-Profits
501(c)(x) and Government Agencies

10% discount

Non-profit organizations (upon proof) will receive a 10% discount in addition to other discounts if available.

Floorplan